Proyecto BIM de habitación de Hotel
Paraproy la plataforma que lidera el modelo de negocio basado en el Prefabricado Digital de Proyectos Constructivos, ha sacado al mercado su último producto, la “Habitación de Hotel Modern” en formato BIM, con la prescripción directa de 36 marcas de fabricantes.
Hoy en día trabajar en proyectos BIM es un hecho que está cambiado la realidad de muchos profesionales. La adaptación a nuevas herramientas de diseño, softwares más inteligentes, más capacidad de procesamiento de datos, análisis de resultados finales del proyecto en fases previas, detección de errores, prescripción directa de productos reales en la fase virtual, etc, todo esto y muchas ventajas más, son las que marcan el nuevo entorno de la construcción.
Paraproy ha resuelto de forma inteligente el problema de la transición metodológica de los proyectos desarrollados tradicionalmente con tecnología CAD, a proyectos mas completos y competitivos con la metodología BIM.
Conforme a informes de la compañía, se estipula que, si un despacho profesional implementa la descarga de modelos prefabricados digitalmente podrá optimizar los costes fijos de diseño entre un 70% a 80%. Una cifra realmente alta si tenemos presente los momentos actuales del impacto del Coronavirus y de la transformación del sector hacia la digitalización.
La estandarización como base de la correcta integración
Los espacios de Paraproy están desarrollados con el Estándar GDEP-BIM, que representan las siglas de “Guía para el desarrollo de Espacios y Proyectos BIM”. Este concepto, surge de la necesidad de que los espacios y proyectos, al unirse o trabajar conjuntamente, interactúen de forma simple y sin errores.
El profesional al descargar un espacio por ejemplo una cocina, un baño, una sala de espera, una habitación, etc, podrá comenzar su proyecto BIM de forma automática y sin mayores problemas, ya que todos los módulos que descargue se integrarán como si fueran fichas de lego. ¡El salto del CAD al BIM se hace más corto y sencillo!
Queremos ayudar a los profesionales a desarrollar proyectos BIM de forma rápida y fácil, respetando la máxima calidad de parametrización, grafismo y coordinación con los datos; Paraproy, represente en términos cualitativos el Prefabricado Digital para el sector de la construcción. Cristobal Bernal, responsable técnico de Parapoy.
«Habitación De Hotel Modern»
No obstante, la calidad no se frena con la estandarización del modelo BIM, sino que el modelo, contiene objetos BIM de algunas empresas fabricantes que han obtenido el Certificado de Calidad de Objetos BIM basados en el Estándar GDO-BIM (por sus siglas de “Guía para el Desarrollo de Objetos BIM”). El Objetos BIM desarrollado con el estándar aporta mas calidad en la estructura de datos al proyecto, respetando el criterio de trazabilidad de parámetros e información que contiene la metodología BIM, en otras palabras, el objeto esta pensado para una usabilidad global, no solo para una fase de diseño, sino también para etapas de ejecución y mantenimiento.

BIM en la prefabricación digital de proyectos constructivos
La combinación de ambas técnicas de estandarización hacen de los productos de Paraproy, proyectos Premium de gran innovación y aportación al sector. Su uso dinámico en las diferentes Fases, dimensiones y Niveles del BIM están reflejados en su estructura madre.
Plantillas para una correcta interpretación
Si bien el modelo no es un proyecto ejecutivo, si aporta gran cantidad de material, tanto en información integrada como en plantillas que la muestran. Esto facilita el trabajo al profesional, ya que cualquier modificación en los contenidos del modelo BIM se trasladarán a dichas plantillas.
En tal sentido, no solo veremos las plantillas con información de los productos, sino con imágenes de los isométricos y la tradicional 2D con el CAD por plantas asociadas.

Plantilla Isométrico – Proyecto BIM de habitación de Hotel
Plantilla Isométrico

Proyecto BIM de habitación de Hotel
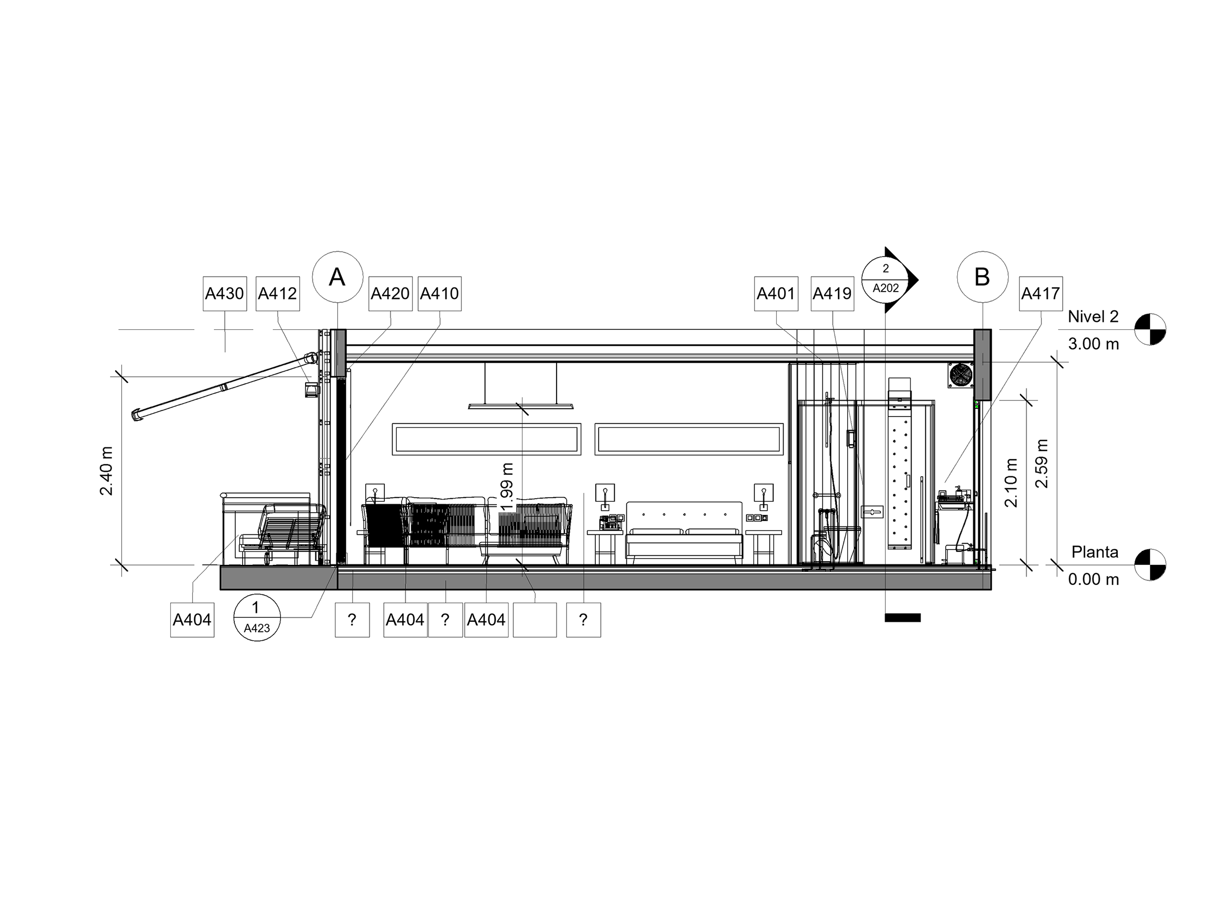
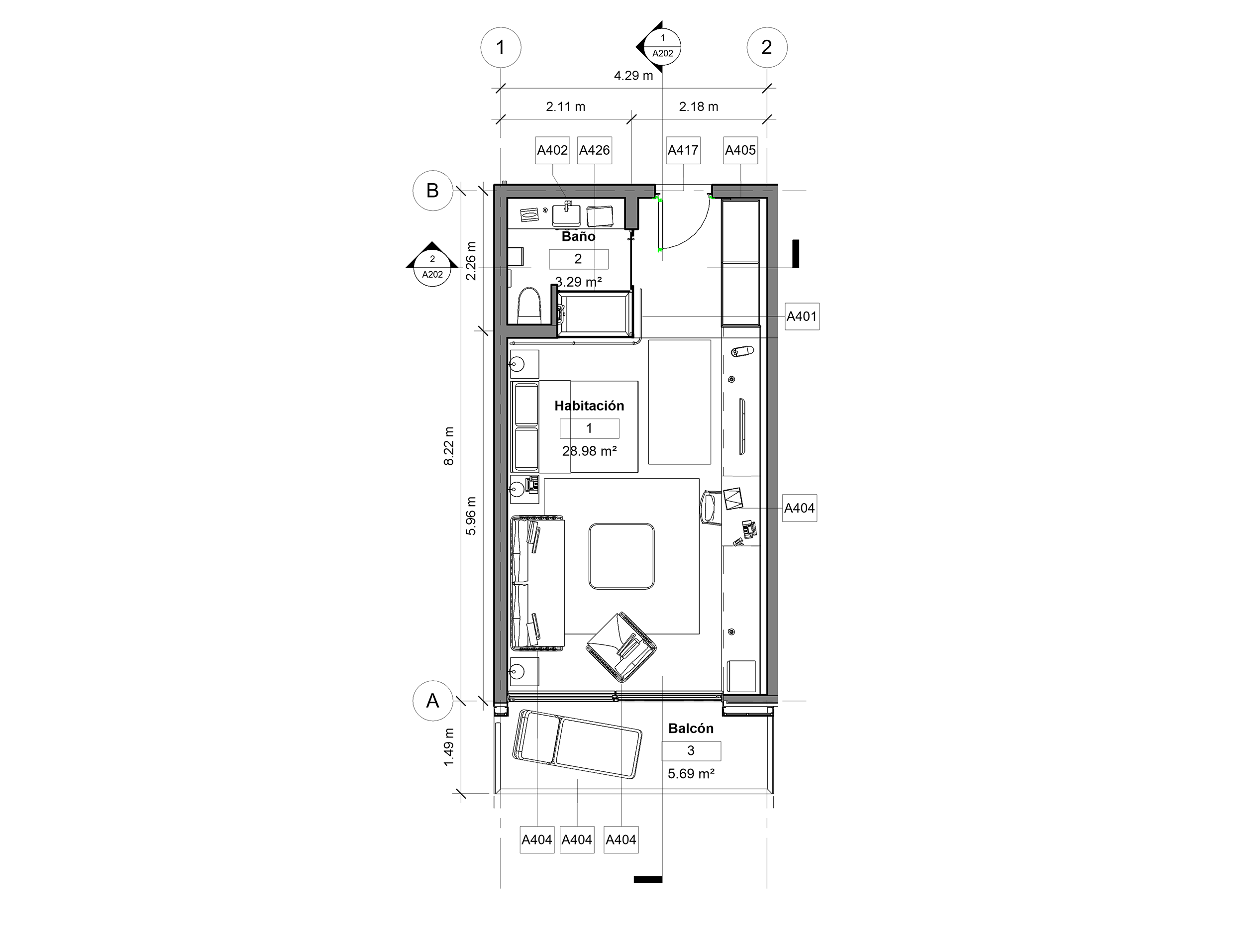
Plantilla vista 2D
Un proyecto BIM de Habitación prescrito con nombre y apellidos
Se ha configurado un espacio de 37,95 m2, que se distribuye en tres zonas (Baño con 3.29 m2, Balcón con 5,69m2 y la habitación con 28,98 m2). El proyecto contiene la descripción de los productos o su prescripción, identificando los productos genéricos y aquellos que representan una marca fabricante.
Cabe destacar que la Lámina A101, nos avisa sobre la cantidad de productos prescritos; en total 161, y del Nivel de Prescripción, siendo de un 57 % de empresas fabricantes y un 43 % para elementos genéticos.
Adicionalmente, el archivo contempla las plantillas con las indicaciones globales de los Listados de elementos y materiales, así como una ficha individualizada de cada uno de los productos por Marca.

Proyecto BIM de habitación de Hotel
Plantilla del Listado de Elementos BIM

Proyecto BIM de habitación de Hotel
Plantilla de producto
Presentación del producto descargable
El profesional podrá descargar el proyecto en un formato comprimido (ZIP o RAR) que contendrá los archivos nativos (Revit©) el IFC, CAD, Excel, PDF informativo, y los Certificados de objetos BIM de Calidad. Todo ello pensado para poder guiar y documentar mejor el proyecto.
Asimismo, los clientes de Paraproy, tendrán a su disposición un servicio de atención personalizado, que les ayudará y guiará en la mejor forma para implementar el proyectos y sugerencia de los productos a incorporar.








